二見町福里 中古戸建

580万円

兵庫県明石市二見町福里54-1

山陽本線「土山」駅徒歩19分

山陽電鉄本線「東二見」駅徒歩26分

山陽電鉄本線「西二見」駅徒歩35分

価格
580万円
間取り/建物面積
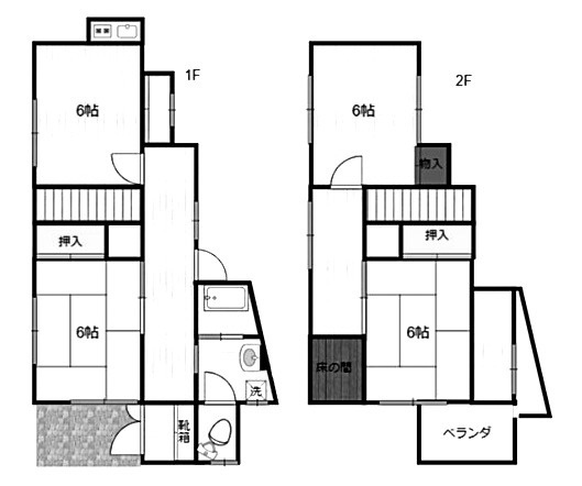
3DK/69.60㎡
所在地
兵庫県明石市二見町福里54-1
築年
1973年11月(築52年)
駐車
-
交通

山陽本線土山」駅 徒歩19分

山陽電鉄本線東二見」駅 徒歩26分

山陽電鉄本線西二見」駅 徒歩35分

二見町福里 中古戸建の基本情報

物件名
二見町福里 中古戸建
価格
580万円
建物面積
69.60㎡
土地面積
24.06坪(79.56㎡)
築年月
1973年11月(築52年)
総戸数
-
所在地
兵庫県明石市二見町福里54-1
交通

山陽本線土山」駅 徒歩19分

山陽電鉄本線東二見」駅 徒歩26分

山陽電鉄本線西二見」駅 徒歩35分

二見町福里 中古戸建の詳細情報

設備条件
設備(その他)
    -
駐車場/月額
-/-
土地権利
所有権
国土法届出
不要
用途地域
第一種住居
取引態様
仲介
引渡し
即時

二見町福里 中古戸建で募集中の物件

  1. 21.05坪 (69.60㎡)

    580万円(24.11万円/坪)

周辺施設

  • 明石市立二見北小学校の画像

    小学校

    明石市立二見北小学校

    800m(10分)

  • セブン-イレブン明石魚住清水店の画像

    コンビニエンスストア

    セブン-イレブン明石魚住清水店

    918m(12分)

  • 福里(バス)の画像

    バス停

    福里(バス)

    987m(13分)

  • なかお歯科医院の画像

    歯科

    なかお歯科医院

    997m(13分)

  • 仁十クリニックの画像

    総合病院

    仁十クリニック

    1108m(14分)

  • あなだ子どもクリニックの画像

    小児科

    あなだ子どもクリニック

    1143m(15分)

  • ディオ明石店の画像

    スーパー

    ディオ明石店

    1203m(16分)

  • ファミリーマート土山駅前店の画像

    コンビニエンスストア

    ファミリーマート土山駅前店

    1240m(16分)

  • 藤田クリニックの画像

    内科

    藤田クリニック

    1360m(17分)

  • ジャパン明石土山店の画像

    ドラッグストア

    ジャパン明石土山店

    1401m(18分)

  • みなと銀行 土山支店の画像

    銀行

    みなと銀行 土山支店

    1534m(20分)

  • 加古郡 土山内科外科医院の画像

    外科

    加古郡 土山内科外科医院

    1535m(20分)

  • ドラッグコスモス 東二見店の画像

    ドラッグストア

    ドラッグコスモス 東二見店

    1546m(20分)

  • JR土山駅の画像

    JR土山駅

    1556m(20分)

  • イオン土山店の画像

    スーパー

    イオン土山店

    1729m(22分)

  • 明石市立魚住中学校の画像

    中学校

    明石市立魚住中学校

    1869m(24分)

  • ローソンS 明石魚住店の画像

    コンビニエンスストア

    ローソンS 明石魚住店

    1911m(24分)

  • コーナンPRO 魚住店の画像

    ホームセンター

    コーナンPRO 魚住店

    2112m(27分)

  • マルアイ・魚住店の画像

    スーパー

    マルアイ・魚住店

    2210m(28分)

  • コーナン 魚住店の画像

    ホームセンター

    コーナン 魚住店

    2536m(32分)

近隣の物件

  1. 明石市松が丘5丁目

    4LDK (96.93㎡)

    3,680万円

  2. 明石市中朝霧丘

    2SLDK (93.42㎡)

    2,780万円

  3. 明石市大蔵谷奥

    3LDK (81.56㎡)

    3,290万円

  4. 明石市朝霧東町2丁目

    4LDK (105.30㎡)

    3,280万円

二見町福里 中古戸建

お気軽にお問い合わせください

無料お問い合わせ

トラスト不動産(株)

078-962-5271

10:00~18:00

(休:毎週水曜日 )